Centre Esportiu Can Ricart
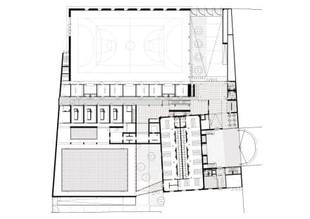
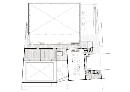
El complex esportiu municipal can ricart és un edifici situat al cor del raval sud. El conjunt inclou dos edificis preexistents, el pavelló poliesportiu i l’edifici industrial del s. xix de can ricart. El principal esforç ha estat fer un conjunt funcionalment compacte i coherent a nivell funcional, que volumètricament manté la lectura dels tres cossos diversos que el conformen: els dos edificis existents i la nova construcció que conté la piscina.
L’edifici nou és auster en materials i formalment contingut. La façana és de formigó vist, al qual s’ha donat una textura en homenatge als inicis de la indústria tèxtil a catalunya.
El complex esportiu municipal can ricart és un edifici situat al cor del raval sud, una zona amb actuacions importants en els darrers anys. L’equipament és significatiu per a la revitalització del barri en el seu sector tradicionalment més degradat, i ha de contribuir a la integració de tots els sectors socials que habiten en la zona a través del seu ús en les activitats esportives i de benestar.
L’edifici completa l’illa compresa entre la rambla del raval i els jardins dels horts de sant pau. Arquitectònicament l’estratègia del projecte partia d’unes preexistències que el feien especialment complex, doncs el conjunt ha hagut d’integrar dos edificis de prou entitat com el pavelló del raval de l’arquitecte jordi farrando (de 1989) i l’edifici industrial del s. xix de can ricart, presumiblement del mestre d’obres josep fontserè. El principal esforç dels arquitectes ha estat fer-ne un conjunt funcionalment compacte i coherent a nivell funcional, que volumètricament manté la lectura dels tres cossos diversos que el conformen: els dos edificis existents i la nova construcció que conté la piscina, formalment autònoma.
L’edifici de can ricart, que estava en bastant mal estat, s’ha rehabilitat amb l’esperit de l’original en les seves característiques més definitòries. S’ha rehabilitat la façana de josep fontserè recuperant-ne els colors originals de l’estucat, i s’ha deixat al descobert un espai central de doble altura on la família ricart tenia la sala de contractació. Aquest espai s’ha rehabilitat amb sensibilitat i una certa discreció. S’ha recuperant un lluernari que hi havia hagut sobre l’espai central. A la resta de façanes, més maltractades per les múltiples intervencions fetes al llarg dels anys per a annexar i enderrocar naus al seu voltant, l’obra ha consistit a recuperar l’ordre de forats original i donar una pàtina unificadora que deixa veure de manera subtil les ferides de la història sobre els seus murs.
L’edifici nou és auster en materials i formalment contingut. La façana és de formigó vist, al qual s’ha donat una textura que vol ser un homenatge als inicis de la indústria tèxtil a catalunya en aquesta zona de la ciutat.
Premi Arquitectura+ 2011
Premi Bonaplata 2007
Selecció Premis Enor 2011
Selecció Arquia/Próxima 2010
ADREÇA: CARRER SANT OLEGUER 10: BARCELONA
SUPERFÍCIE DE NOVA CONSTRUCCIÓ: 2.655 M2
SUPERFÍCIE REHABILITACIÓ-REFORMA: 1.830 M2
CONCURS: 2000
PROJECTE: 2002-2004
OBRA: 2005-2007
ARQUITECTES: VORA (AMB JORDI FORNELLS)
EQUIP: FILIPE ARAÚJO, RICARDO BORGES (LISBOA), ARNAU BORONAT, RUBÉN HERAS, SÓNIA BOM, IÑIGO RIBERA, SÓNIA GASPAR (BARCELONA)
PROJECTE ESTRUCTURA: MANUEL ARGUIJO Y ASOCIADOS
PROJECTE INSTAL·LACIONS: GRUPO JG INGENIEROS CONSULTORES
ARQUITECTES OBRA: VORA + ESTEVE ROCA
ARQUITECTE TÈCNIC: CARLES BIMA PUIG
PROMOTOR: FOMENT DE CIUTAT VELLA
CONSTRUCTOR: ACCIONA INFRAESTRUCTURAS
FOTOGRAFIES: ADRIÀ GOULA SARDÀ